()
Add to favourites

8 Personen Ferienhaus in HÖGSBY

Hauscode:
HOPV-SE-636
2

Haustype:
Ferienhaus
Region:
Südschweden
Ort:
HÖGSBY
Umzäunter Garten:
nein
WLAN:
kein
Ferienpark:
nein
Anzahl Personen:
8
Anzahl Hunde:
2  Gratis mit
Schlafzimmer:
6
Badezimmer:
1
Wohnfläche:
210m²
Energieetikett:
0
Fragen?

Mikrowelle
Fernseher

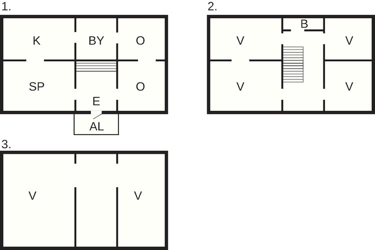
Hausbeschreibung
Schön geräumiges Ferienhaus mit malerischer Lage und fantastischer Aussicht! Sie wohnen hier nahe der Gemeinde Högsby mit Einkaufsmöglichkeiten. Das ältere Ferienhaus steht auf einem großen Naturgrundstück mit einer schönen Terrasse und Gartenmöbeln. Hier können Sie die ländliche Ruhe umgeben von Wiesen und unvergleichlicher Natur so richtig genießen, während Sie in der Ferne einen Blick auf Högsby erhaschen. Machen Sie einen Spaziergang am wunderschönen Emån entlang, dessen Flusslauf so schön durch Högsby verläuft. Emån ist auch bei Anglern beliebt. Am See Gösjön findet man ein großes, schönes Badeufer mit Sprungturm und Steg füe sonnige Tage. Es gibt auch Minigolf und einen Kiosk. Die Eingangsebene des Hauses besteht aus Gemeinschaftsbereichen wie Küche, Esszimmer und zwei Wohnzimmern mit Sitzgruppen. Im Obergeschoss stehen Ihnen insgesamt vier Schlafzimmer zur Verfügung; eines mit Doppelbett, die anderen drei jeweils mit einem Einzelbett. In einem der Zimmer gibt es auch ein Schlafsofa. Außerdem steht Ihnen ein wunderschön eingerichtetes Dachgeschoss mit zwei Schlafzimmern zur Verfügung; eines mit Doppelbett, das andere mit zwei Einzelbetten. Es sind also genügend Betten vorhanden, das Haus wird aber an maximal 8 Personen vermietet. Das Haus verfügt nur über ein kleines Badezimmer, es befindet sich im zweiten Stock und ist mit WC, Waschbecken und Dusche ausgestattet. Beachten Sie bitte, dass die Fenster älter und sehr brüchig sind und daher nicht geöffnet werden können. Ein Befeuern des Kamins ist aus Sicherheitsgründen nicht gestattet! Sie wohnen hier in der Nähe weiterer Badeinseln und auch der Küste. In Oskarshamn können Sie im Meer baden und eine größere Auswahl genießen. Hier können Sie einen Tagesausflug mit der Fähre nach Byxelkrok auf Öland unternehmen. In Oknö gibt es auch schöne Meeresbäder. Mehr Kastell, Smålands Grand Canyon mit seiner 8 km langen Schlucht ist einen Besuch wert. Im Naturschutzgebiet Aboda Klint gibt es ein Restaurant. In Berga gibt es zwei beliebte Cafés, die einen Besuch wert sind: Café Tre Århundraden und Elsabo Herrgårdsscafé. Der Elchpark liegt in Målilla.
Mehr Info 

Aufteilung
Küche(Kochherd(elektrisch), Kaffeemaschine, Mikrowelle, Kühl-/Gefrierkombination), Wohn-/Schlafzimmer(TV), Wohn-/Schlafzimmer, Schlafzimmer(Doppelbett), Schlafzimmer(Einzelbett), Schlafzimmer(Einzelbett), Schlafzimmer(Einzelbett), Schlafzimmer(Doppelbett), Schlafzimmer(Einzelbett), Badezimmer(Waschbecken, Dusche, Toilette), Waschmaschine, Heizung(elektrisch), Gartenmöbel, Parkplatz

Dieses Haus wird Ihnen angeboten von Dancenter


Wald:
-
Zentrum:
1,20 km
See:
-
Supermarkt:
1,30 km
Restaurants:
1,20 km
Öffentliche Verkehrsmittel:
-
Ausgehmöglichkeiten:
-
Meer:
-

Reviews von Hundebesitzern

Übrige Reviews

  Sabine - Aufenthaltsdauer: 10.01.2025 - 17.01.2025
Dieses Ferienhaus fühlte sich wie ein wahrer Rückzugsort an! Wir liebten die gemütliche Atmosphäre und den großen Essbereich, in dem wir alle versammeln konnten, Die nahegelegenen Cafés in Berga waren wunderbar für nachmittägliche Snacks,


  Carolin - Aufenthaltsdauer: 16.04.2024 - 28.04.2024
Wir hatten einen unvergesslichen Aufenthalt im Ferienhaus HÖGSBY II! Der großzügige Grundriss war perfekt für unsere Gruppe von acht Personen, und wir liebten die gemütlichen Wohnbereiche, Der Blick auf die Wiesen war atemberaubend, besonders bei Sonnenaufgang,


  Ivica - Aufenthaltsdauer: 11.04.2024 - 19.04.2024
Toller Ort für einen Gruppenurlaub! Die sechs Schlafzimmer boten ausreichend Platz, und wir liebten es, im Wohnzimmer abzuhängen, Ein paar zusätzliche Badezimmer wären schön gewesen, aber insgesamt hatten wir einen sehr komfortablen Aufenthalt,


  Salvi - Aufenthaltsdauer: 20.11.2023 - 01.12.2023
Ein sehr geräumiges Zuhause mit einem schönen Garten, Wir haben es geliebt, Zeit im Freien zu verbringen, und die Ausblicke waren fantastisch, Die Küche hatte alles, was wir brauchten, könnte aber ein Update vertragen, Wir haben das Beste aus unserer Zeit gemacht, die Gegend zu erkunden und genossen unsere Zeit am Emån-Fluss,


  Kresitschnig - Aufenthaltsdauer: 04.11.2021 - 17.11.2021
Das Haus war sauber, gut eingerichtet und hatte alles, was für einen komfortablen Aufenthalt nötig ist, Nah an lokalen Cafés und Restaurants,


  Eger - Aufenthaltsdauer: 07.11.2020 - 18.11.2020
Schöner Ort insgesamt, sehr ruhig und entspannend, Mir gefiel, wie nah es zur Natur und zum Fluss war, Die Wohnbereiche waren groß genug, um uns zu treffen, Allerdings waren die Fenster super alt und konnten nicht geöffnet werden, was ein wenig nervig war, Trotzdem hatten wir eine tolle Zeit, die nahegelegenen Badestellen und Cafés zu erkunden,


  Hintze - Aufenthaltsdauer: 04.01.2020 - 17.01.2020
Geräumig und einladend, hat dieses Ferienhaus unsere Erwartungen übertroffen, Die Kinder liebten den Garten, und wir schätzten die ruhige Umgebung, Wir haben Tagesausflüge zu nahegelegenen Attraktionen wie Astrid Lindgrens Welt unternommen, was ein Hit für die Familie war, Ein schöner Rückzugsort vom Stadtleben!



























































Reisezeitraum


Samstag 06.06.2026
(zwischen 16:00 und 16:00)
Samstag 13.06.2026
(bis 10:00)
Anderes Datum?
1.125,80 € 1.425,06 €
inkl. MwSt.Details
Sie besparen 21%

Buchen

Sie haben Interesse an dieser Unterkunft und wollen up-to-date bleiben? Dann nutzen Sie unseren Alert. Sie erhalten eine Nachricht, wenn dieses Ferienhaus (wieder) frei wird oder für das kommende Jahr zu buchen ist!


Zusatzkosten
Handtücher:
Mitzubringen
WLAN:
Nicht vorhanden


Nebenkosten, nicht im Preis enthalten
Endreinigung:
Selbst (ordentlich) durchzuführen
Bettwäsche:
Mitzubringen

Preis inklusive:
Haustiere
Buchungskosten
Schadensversicherung


Alternativen